Contact Us

Our projects

Varied cross-sector experience

Fountain Road, Bridge of Allan

Fountain Road, Bridge of Allan

Construction of a 9,900 sq ft town centre Co-op and car park is ongoing with completion scheduled for early summer 2026.

Heathfield Road, Ayr

Heathfield Road, Ayr

Kingsmead is acting as Development Manager for Alexander Sawmills Ltd in promoting a major mixed-use development at Heathfield in Ayr.

Carlisle Road, Airdrie

Carlisle Road, Airdrie

A drive thru' Starbucks was completed with key franchisee Oco following a site acquisition on behalf of Lidl UK.

Island Street, Galashiels

Island Street, Galashiels

This former Grahams unit on Island St was acquired and subsequently reconfigured to create a 6,910 sq ft Screwfix and 4,520 sq ft Easy Bathrooms. The investment was held for a period and then sold to a private investor.

Station Road, Kemnay

Station Road, Kemnay

Kingsmead was appointed by the Co-op to redevelop their existing store in Kemnay, Aberdeenshire. The 6,039 sq ft store maximises the tight site by locating the back of house facilities at first floor.

South Beach, Blyth

South Beach, Blyth

Kingsmead is working in partnership with Blagdon Estate on this highly prominent beachfront location. The Phase 1 retail and leisure was completed in 2024 with Phase 2 hotel, pub and retail pods to be delivered in due course.

Lynemouth Road, Ellington

Lynemouth Road, Ellington

A 3,719 sq ft Co-op convenience store successfully completed in November 2021. The store forms part of new housing expansion area being undertaken by Ascent Homes.

Alexandra Parade, Glasgow

Alexandra Parade, Glasgow

We are delighted to welcome Clyde Munro Dental Group who have taken an assignation of the lease of Alexandra Park Dental Practice. This rounds off a fantastic year for the asset.

West Byrehill, Kilwinning

West Byrehill, Kilwinning

A 72 unit social housing development of family homes in partnership with McTaggart Construction on behalf of Cunninghame Housing Association completed in 2022.

Waggon Road, Ayr

Waggon Road, Ayr

A 76 unit social housing development in partnership with Ashleigh Building on behalf of South Ayrshire Council Housing completed in 2022.

PORTAL

PORTAL

Kingsmead was appointed by Scottish Enterprise and Zero Waste Scotland to manage a design team, led by 360 Architects, and come up with concept designs embracing cutting edge technology and innovative construction techniques.

Alexandria Town Centre

Alexandria Town Centre

Work has recently completed on a new Lidl store which will act as a catalyst for the regeneration of Alexandria Town Centre.

East Park Road, Ayr

East Park Road, Ayr

Kingsmead is acting as development manager to a private investor in promoting 20 acres of former industrial land for housing.

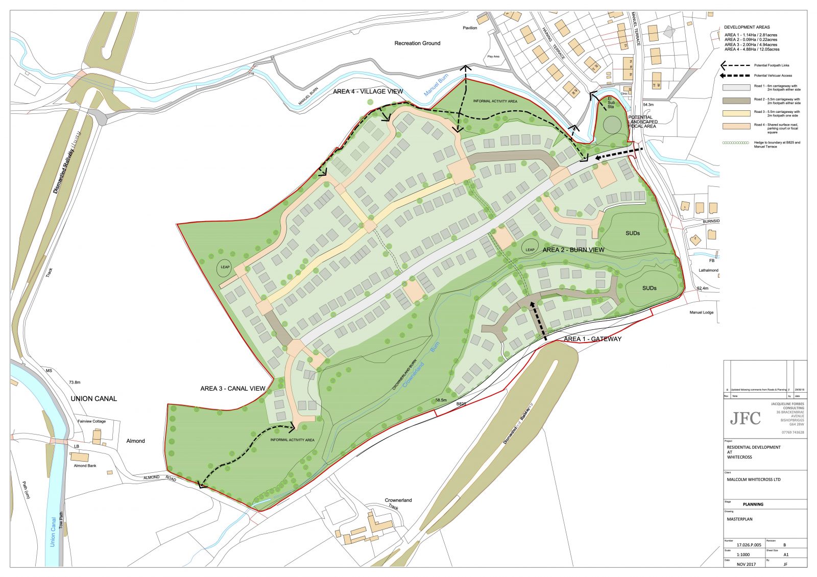
Whitecross Village, Falkirk

Whitecross Village, Falkirk

Kingsmead acted as development manager to a private investor in promoting a 30 acre site for housing development in Whitecross. This involved dealing with a complex series of issues leading to a site sale to Miller Homes for 230 units.

Panmure Street, Glasgow

Panmure Street, Glasgow

Co-ordination of a 140 unit social housing project on behalf of Scottish Canals next to the Forth & Clyde canal. Site ultimately developed by local housing association.

Brooms Road, Dumfries

Brooms Road, Dumfries

60 unit retirement flat development for McCarthy & Stone, forming part of a wider mixed use scheme.

Riverford Road, Glasgow

Riverford Road, Glasgow

Acquisition of 6 acre site in the south side of Glasgow in conjunction with CCG Group for a mix of social rented and private dwellings for sale.

Lidl

Lidl

Kingsmead has completed a number of developments on behalf of Lidl including Stranraer, Dumfries, Tollcross in Glasgow and most recently at Carlisle Road, Airdrie.

Aldi

Aldi

Various developments completed for Aldi in locations such as Alexandria, Saltcoats and Strathaven.

Alexandra Parade, Glasgow

Alexandra Parade, Glasgow

Mixed-use development completed in conjunction with Sovereign House Developments including 7 retail units and 44 flats. The retail investment has been retained within the company's portfolio.

Iceland, Saltcoats

Iceland, Saltcoats

7,000 sq ft retail unit developed for Iceland alongside Aldi at Saltcoats waterfront.

Newcarron Village, Falkirk

Newcarron Village, Falkirk

35,000 sq ft store for Matalan developed in conjunction with Henry Lax. The property was held for a number of years before selling to a private investor.

Caledonian Retail Park, Wishaw

Caledonian Retail Park, Wishaw

135,000 sq ft retail park refurbishment and extension on behalf of Gazeley Properties and Henry Lax. Tenant line up included Homebase, Argos, Matalan and Halfords.

Coltness Road, Wishaw

Coltness Road, Wishaw

Neighbourhood development on behalf of Tesco Express and Deans Pharmacy.

Rosebank Distillery, Falkirk

Rosebank Distillery, Falkirk

Management of important heritage asset for Scottish Canals leading to the sale of the property to Ian MacLeod Distillers who have undertaken a stunning re-modelling of the complex.

Portdownie, Falkirk

Portdownie, Falkirk

Development management role for Scottish Canals in co-ordinating a mixed-use masterplan for 525 houses, infrastructure, leisure and ancillary commercial uses.

Bowling Basin

Bowling Basin

Co-ordination of a mixed-use masterplan for Bowling Basin, West Dunbartonshire on behalf of Scottish Canals. The masterplan includes the restoration of heritage assets, woodland regeneration, leisure uses and an eco village.

Budget Hotel, Edinburgh

Budget Hotel, Edinburgh

Highly successful Premier Inn hotel located next to the A1 in the east of Edinburgh.

Family pub restaurant, Edinburgh

Family pub restaurant, Edinburgh

Pub restaurant trading as The Cuddie Brae developed as part of wider leisure development.

Health & Fitness Club, Edinburgh

Health & Fitness Club, Edinburgh

30,000 sq ft health club developed on behalf of Livingwell, now trading as Bannatynes. The development involved a complex ground consolidation contract.

Elliot Industrial Estate, Arbroath

Elliot Industrial Estate, Arbroath

8,000 sq ft trade counter unit developed on behalf of Howden Joinery. The property was held as an investment for a period before it was sold to a private investor.

Kingsmead has the funding and experience to deliver high quality developments

Find out more